Lakás eladó

Budapest XII. ker., Városmajor utca - Krisztinaváros II
99.900.000 Ft
€ 257.281
2 szoba 2 szoba
83 nm 83 nm

Lakás eladó

Budapest XII. ker., Városmajor utca - Krisztinaváros II

Leírás

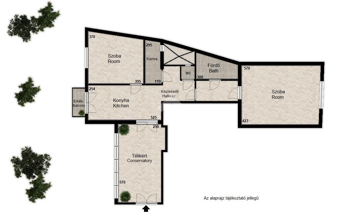
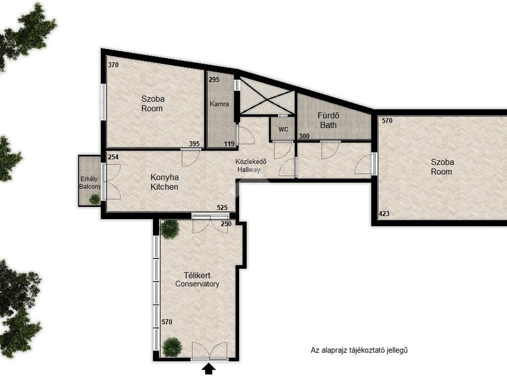
Igazi különlegesség irodánk kínálatában!

Krisztinavárosban, 1929-ben épült, polgári stílusú, liftes társasházban, emeleti, erkélyes, napos lakás keresi új tulajdonosát.

Az ingatlan az épület 1. emeletén található, csendes hátsó kertre és utcai irányba tekint. A lakás zárt lépcsőházból közelíthető meg.

Már az előtérben elvarázsol a 14 nm-es, polgári bájjal teli télikert, amely zöldre néző üvegfelületeivel igazi nyugalomsziget.

Szobái tágasak (13-24nm), szeparáltak és jó fényviszonyokkal rendelkeznek.

A lakás központi részén egy 14 nm-es hátsó kertre néző, erkélykapcsolatos étkezős konyha található. Szomszédságában találjuk a tárolást könnyítő 3 nm-es kamrát.

A fürdőszobát és a külön wc-t pedig egy közlekedőn keresztül közelíthetjük meg.

A fűtést gázhéra (cserépkályha) és gázkonvektor biztosítja, míg a melegvíz ellátásért villanybojler felel.

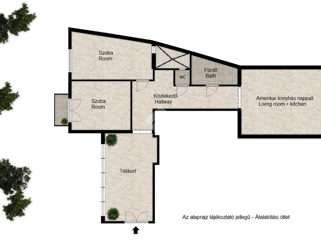
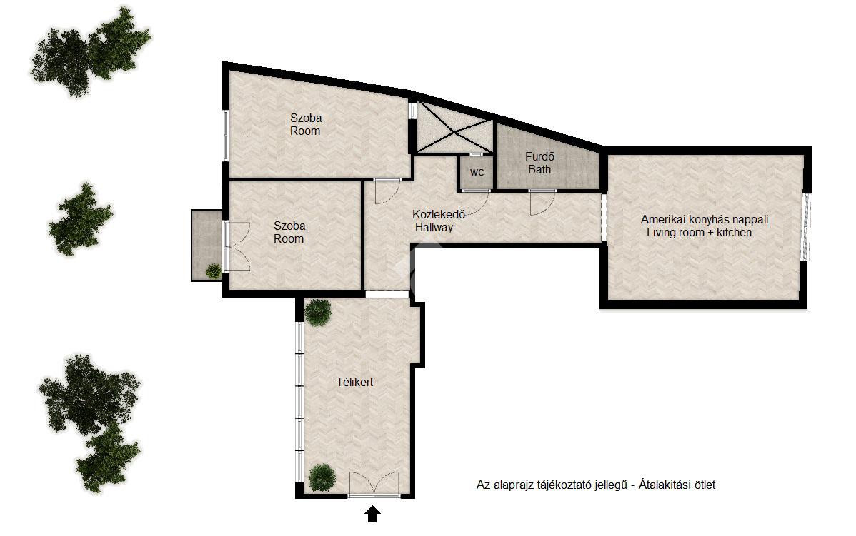
Igény szerint könnyen alakítható.

Ha egy napfényes, polgári stílusú, erkélyes lakásról álmodik Buda egyik kedvelt, történelmi városrészében, ne hagyja ki ezt a lehetőséget!

Jöjjön el és tekintse meg mielőbb!

Összes mutatása

Tulajdonságok

Ref.:
58726
Állapot:
Felújítandó
Emelet:
1
Lift:
Van
Építőanyag:
Tégla
Építés éve:
1920
Összes mutatása

Energetikai tanúsítvány

Ennél az ingatlannál az energetikai tanúsítvány folyamatban van
Építés éve:
1920

Vegye fel velünk a kapcsolatot

* Ez a mező kötelező
Franchisee
Agenzia Monteverde Kft.
1122 Budapest, Maros utca, 23.
1122 Budapest, Maros utca, 23. XII. kerület
Hétfő-Péntek: 09:00-18:00, Szombat: 09:00-14:00
Franchisee
Agenzia Monteverde Kft.
1122 Budapest, Maros utca, 23.
Tecnocasa Group Logo

Minden ügynökségnek saját tulajdonosa van és önállóan működik.

árfolyam 29/10/2025
EUR 388.29 HUF

cégünk

Elérhetőségeink

2025 Gruppo T.F.M. Szolgáltató Zrt. - P. IVA 27421275-2-42 - 1068 Budapest, Király utca 102.. Minden ügynökségnek saját tulajdonosa van és önállóan működik.

Adatvédelmi irányelvek | Cookies tájékoztató