Lakás eladó

Budapest XII. ker., Nógrádi utca - Orbánhegy
185.000.000 Ft
€ 472.915
4 szoba 4 szoba
100 nm 100 nm

Lakás eladó

Budapest XII. ker., Nógrádi utca - Orbánhegy

Leírás

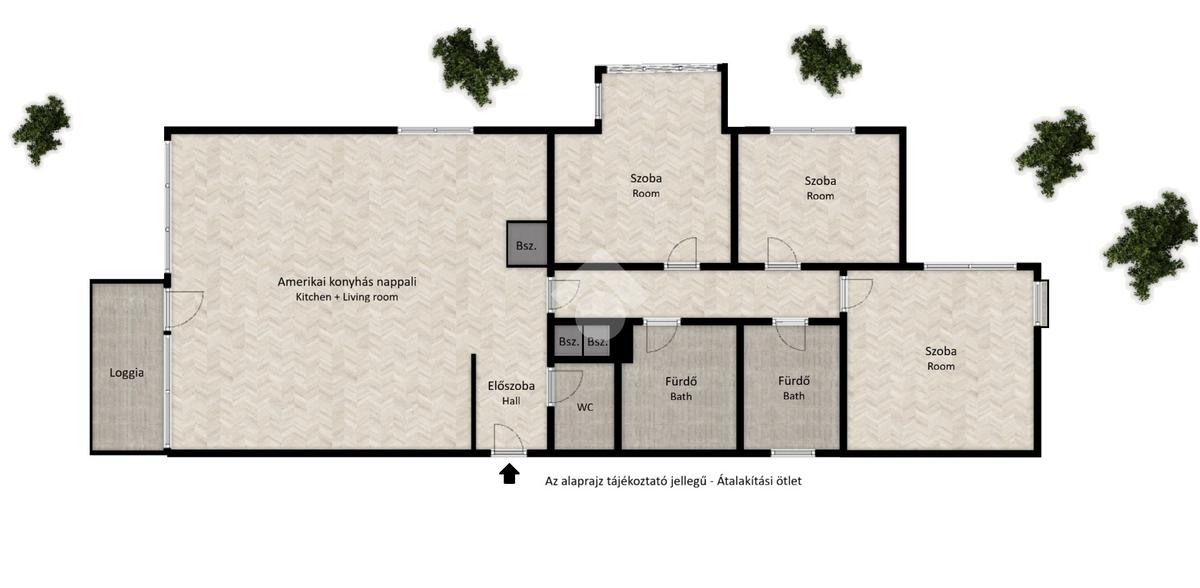
Istenhegyen, csendes mellékutcában, nagyméretű telken fekvő, kevés lakásos, jó állapotú társasházban, emeleti, napos, egyedi fűtéses, jó állapotú lakás.

A jó állapotú házat egy nagyméretű, gondozott kert öleli körbe.

A lépcsőházba lépve szép, felújított környezet fogad minket. A lépcsőházi nyílászárók új, hő és hangszigetelt üvegezésű, minőségi, fa ablakok, ajtók.

Az ingatlan az épület II. emeletén található.

Néhány évvel ezelőtt teljeskörű felújításon esett át, amely kiterjedt a nyílászárókra, burkolatokra, vezetékekre, fűtési rendszerre, gépészetre, konyhára és a fürdőszobára is.

A lakás központi része a tágas, nagy üvegfelülettel rendelkező, dk-i fekvésű, erkélykapcsolatos, szép kilátással rendelkező amerikai konyhás nappali.

Szobái külön bejáratúak és egy szeparált közlekedőn közelíthetőek meg.

Szomszédságukban találjuk az épített zuhannyal és wc-vel szerelt fürdőszobát és a háztartási helységet, amelyből igény szerint még egy további fürdőszoba is kialakítható.

A lakás fűtését és melegvíz ellátásáért 2 db Viessmann kazán felel.

Az ingatlanhoz opcionálisan, külön helyrajzi számon nyilvántartott garázs vásárolható, melynek vételára + 14.000.000 ft.

Jöjjön el és tekintse meg mielőbb!

Összes mutatása

Tulajdonságok

Ref.:
59212
Állapot:
Emelet:
1
Lift:
Nincs
Építés éve:
1970
Összes mutatása

Energetikai tanúsítvány

Ennél az ingatlannál az energetikai tanúsítvány folyamatban van
Építés éve:
1970

Vegye fel velünk a kapcsolatot

* Ez a mező kötelező
Franchisee
Agenzia Monteverde Kft.
1122 Budapest, Maros utca, 23.
1122 Budapest, Maros utca, 23. XII. kerület
Hétfő-Péntek: 09:00-18:00, Szombat: 09:00-14:00
Franchisee
Agenzia Monteverde Kft.
1122 Budapest, Maros utca, 23.
Tecnocasa Group Logo

Minden ügynökségnek saját tulajdonosa van és önállóan működik.

árfolyam 23/12/2025
EUR 391.19 HUF

cégünk

Elérhetőségeink

2025 Gruppo T.F.M. Szolgáltató Zrt. - P. IVA 27421275-2-42 - 1068 Budapest, Király utca 102.. Minden ügynökségnek saját tulajdonosa van és önállóan működik.

Adatvédelmi irányelvek | Cookies tájékoztató